Programas FEDER del País Vasco

El Programa del País Vasco FEDER 2021-2027 tiene como objetivos impulsar la transformación tecnológico-digital del País Vasco, en línea con la Estrategia de Especialización Inteligente-RIS 3 Euskadi 2030 e impulsar la transformación energética-climática de Euskadi, en línea con la iniciativa Basque Green Deal y el Pacto Verde Europeo, contribuyendo así a construir una Euskadi más verde y digital, integrada en una Europa más cohesionada y resiliente. Para ello, ha concentrado sus actuaciones en el Objetivo Político 1 ‘Una Europa más competitiva e inteligente’ y en el Objetivo Político 2 ‘Una Europa más verde’ Actuaciones del Departamento de Educación cofinanciadas por el Fondo Europeo de Desarrollo Regional (FEDER) Las actuaciones de mejora de eficiencia energética en Centros Públicos Educativos de la CAE se encuadran dentro del siguiente Objetivo Político: Objetivo Político 2 Una Europa más verde Objetivo Especifíco 2.1 Fomentar la eficiencia energética y la reducción de las emisiones de gases efecto invernadero. Las actuaciones tienen por objeto impulsar la eficiencia energética y el uso de fuentes renovables de energía en edificios públicos e inversiones en iniciativas innovadoras.
Mejora de eficiencia energética en Centros Públicos Educativos de la CAE El Centro de Educación Especial CEE Gorbeialde HBI está situado en la calle Blas de Otero nº 2 de Vitoria-Gasteiz. En 2024, el Departamento de Educación ha finalizado las obras de rehabilitación de lacubierta y fachadas del edificio principal para mejorar las características de la envolventetérmica del centro y evitar las filtraciones de la cubierta. La rehabilitación de la cubierta ha consistido en la eliminación de los elementos superpuestos a la cubierta original, la formación de una nueva cubierta invertida sobre la losa de hormigón debidamente aislada e impermeabilizada y la renovación de los lucernarios de la cubierta y la red de evacuación de aguas pluviales. En cuanto a las fachadas, se ha instalado un sistema de fachada ventilada por el exteriorde la fachada anteriormente existente. La fachada ventilada está formada por aislamiento de lana mineral, cámara de aire y acabado en paneles de aluminio o plaqueta cerámica, según zonas. Además, se han sustituido las carpinterías del edificio por nuevas carpinterías de aluminio con rotura de puente térmico. El coste final de la obra ha ascendido a 1.366.217,52 € (IVA incluido). Previo a la reforma, el edificio tenía una calificación energética “C”, tanto en consumo de energía primaria no renovable como en emisiones de dióxido de carbono. Tras las obras de rehabilitación, la calificación energética final es “B” en consumo de energía no renovable, y “A” en emisiones de dióxido de carbono, con una reducción del consumo del 45 % y una reducción de emisiones de CO2 del 48%. El instituto IES URIBE KOSTA BHI fue construido en 1970, y se ubica en la calle Genaro Urrutia Aldapa, nº 1, en el barrio Txipio de Plentzia. En 2025, el Departamento de Educación inició las obras de rehabilitación de las fachadas y cubierta del edificio, con el fin de mejorar las características de la envolvente térmica del centro y su eficiencia energética. Las fachadas se rehabilitarán mediante el sistema de fachada ventilada, formada por aislamiento de lana mineral, cámara de aire y acabado de placas de fibrocemento. En algunos puntos se utilizará también un Sistema de Aislamiento Térmico Exterior (SATE), acabado en mortero acrílico. Además, se sustituirán todas las carpinterías del edificio por nuevas carpinterías de aluminio extruido con rotura de puente térmico. En cuanto a la cubierta, se elimina la cubierta existente y se hace una nueva cubierta transitable mediante una solera flotante de hormigón sobre aislamiento de poliestireno extruido (XPS). El presupuesto total de proyecto es de 1.524.356,45 € (IVA incluido). El edificio actual tiene una calificación energética “C”, tanto en consumo de energía primaria no renovable como en emisiones de dióxido de carbono. Tras las obras de rehabilitación, la calificación energética final prevista es “A”, tanto en consumo de energía no renovable como en emisiones de dióxido de carbono, con una reducción del consumo del 53 % y una reducción de emisiones de CO2 del 62%. En 2024, el Departamento de Educación puso en marcha las obras de rehabilitación del antiguo Ayuntamiento de Itziar, situado en la Herriko plaza, para acondicionarlo como colegio de educación primaria para el CEIP LUZARO HLHI de Deba. El edificio llevaba muchos años en desuso, y se encontraba en un estado pésimo de conservación, a excepción del volumen de 2 plantas adosado a este, que ha sido utilizado por la Entidad Local Menor de Itziar para sus reuniones. El edificio, de estructura de madera y fachadas de mampostería, está catalogado y protegido por la Diputación Foral de Gipuzkoa por encontrarse en el Camino de Santiago, por lo que la rehabilitación ha sido muy minuciosa y ha tenido que respetar todos los elementos y sistemas constructivos originales, además de sus fachadas. Además de su rehabilitación integral, se mejorará la accesibilidad del edificio y sus condiciones de seguridad en caso de incendio. La obra está pendiente de finalización. Además de mantener los elementos de madera de la estructura original, con el fin de mejorar las características térmicas del edificio, las fachadas se han trasdosado con paneles de cartón-yeso y aislamiento de lana mineral y se han aislado las cubiertas. El presupuesto de adjudicación de las obras es de 1.668.143,83 € (IVA incluido). El edificio previo a las obras de reforma tenía una calificación energética “E” en consumo de energía primaria no renovable, y “E” en emisiones de dióxido de carbono. Tras las obras de rehabilitación, la calificación energética prevista es “A”, tanto en consumo de energía no renovable como en emisiones de dióxido de carbono, con una reducción del consumo del 76 % y una reducción de emisiones de CO2 del 84%. El edificio Zubiri del IES Zubiri-Manteo BHI de Donostia está situado en la calle Jose Miguel de Barandiaran 12 de Donostia, en el barrio de Sagües. Fue construido en el año 1979-80, como Instituto de Bachillerato de Gros, según proyecto del arquitecto Luis Peña Ganchegui. Actualmente se imparten en el mismo las etapas educativas de ESO y Aula de Aprendizaje de Tareas, Bachilleratos y Ciclos Formativos de Grado Medio y Superior, así como Formación no Reglada. La fachada del proyecto original estaba revestida de un aplacado de piedra arenisca. Se trata de un enclave muy azotado por el viento y el mar, por lo que su deterioro ha sido muy importante. Por este motivo, estas fachadas han sido objeto de diversas actuaciones parciales de reparación a lo largo del tiempo, y actualmente presenta diferentes tipologías y acabados de fachada. En 2025, el Departamento de Educación puso en marcha el procedimiento para la contratación de las obras de rehabilitación integral de las fachadas y cubiertas del edificio, con el objeto de mejorar su eficiencia energética. Las fachadas se rehabilitarán mediante una fachada ventilada, con aislamiento de lana mineral y placas cerámicas extrusionadas como acabado, en algunas zonas, y con un Sistema de Aislamiento Térmico Exterior (SATE), también con acabado cerámico o de mortero, en otras. Además, se sustituirán las carpinterías exteriores mediante la instalación de carpinterías de aluminio con rotura de puente térmico y acristalamiento doble, con tratamiento bajo emisivo y cámara de aire con gas argón. Además, se colocarán estores y lamas de protección solar con el fin de evitar el soleamiento excesivo. En cuanto a la cubierta, se sustituirá la cubierta actual por una cubierta transitable invertida, con lámina impermeable y aislamiento de poliestireno extruido, y acabada en hormigón lavado. El presupuesto total de contrata de proyecto asciende a 2.303.385,87 € (IVA incluido). El edificio actual tiene una calificación energética “D” en consumo de energía primaria no renovable, y “C” en emisiones de dióxido de carbono. Tras las obras de rehabilitación, la calificación energética prevista en consumo de energía no renovable es “B”, con una reducción del consumo del 41%. La calificación energética prevista en emisiones de dióxido de carbono es también “B”, con una reducción de emisiones de CO2 del 44. El Instituto de Educación Secundaria IES PIO BAROJA BHI, ubicado en la calle Elkano 2 de Irún, fue inaugurado en el año 1.965, por lo que cuenta con 60 años de antigüedad. El edificio tiene grandes carencias a nivel de eficiencia energética y presenta serios problemas de confort térmico. Las fachadas presentan problemas de filtraciones de agua y falta de estanqueidad, así como serios problemas de soleamiento en las fachadas sur y este. En 2025, el Departamento de Educación puso en marcha el procedimiento para contratar las obras de rehabilitación de fachadas, mejora de la accesibilidad del edificio, y adecuación a la normativa de seguridad en caso de incendio. El presupuesto total de contrata de proyecto es de 5.281.818,80 € (IVA incluido). Se prevé la rehabilitación integral de las fachadas mediante la ejecución de un sistema de aislamiento térmico por el exterior, así como la sustitución de las carpinterías y la instalación de un sistema de protección solar en las fachadas sur y este para reducir el soleamiento excesivo. En las fachadas se utilizará un sistema de fachada ventilada, con aislamiento de lana de roca y placas de cerámica extruida, así como un sistema de aislamiento térmico por el exterior (SATE) y acabado con revoco acrílico en algunas zonas. Se sustituirán las carpinterías actuales por unas nuevas de aluminio lacado con rotura de puente térmico y vidrios de seguridad bajo emisivos. El edificio actual tiene una calificación energética “D” en consumo de energía primaria no renovable, y “D” en emisiones de dióxido de carbono. Tras las obras de rehabilitación, la calificación energética prevista en consumo de energía no renovable es “B”, con una reducción del consumo del 41%. La calificación energética prevista en emisiones de dióxido de carbono es “C”, con una reducción de emisiones de CO2 del 44%. El edificio del centro CIFP INNOVACIÓN SOCIAL (actualmente HERNANI LANBIDE HEZIKETA) fue construido en 1962 en la calle Karmelo Labaka 7 de Hernani, y ampliado en 1968. En 2024, el Departamento de Educación finalizó las obras de rehabilitación del edificio para mejorar las características de la envolvente térmica y su eficiencia energética, así como la accesibilidad, la protección contra incendios, las instalaciones y mejora de diversos espacios interiores. El edificio presentaba graves problemas de confort térmico y acústico, así como instalaciones que no se adecuaban a la normativa vigente. Las fachadas se rehabilitaron mediante un Sistema de Aislamiento Térmico por el Exterior (SATE) con acabado de mortero y aislamiento de lana mineral. Se sustituyó toda la carpintería exterior del edificio por nuevas carpinterías de aluminio termolacado con rotura de puente térmico y acristalamiento doble con tratamiento bajo emisivo y cámara de aire con gas argón. En cuanto a las instalaciones, entre otras actuaciones, se reformó la sala de calderas para su funcionamiento con gas natural (anteriormente era de gasóleo), se instalaron radiadores en pasillos y zonas de circulación sin calefactar, y se sustituyeron las luminarias fluorescentes que existían por luminarias de tipo LED. Las obras se finalizaron en febrero de 2024, siendo el coste total de las obras de 2.708.637,92 € (IVA incluido). Tras las obras, el edificio ha obtenido una calificación energética “C” en consumo de energía primaria no renovable, siendo el ahorro en este consumo del 44 %. En cuanto a las emisiones de dióxido de carbono, la calificación energética final es “B”.Programa 2021-2027
CEE GORBEIALDE HBI. VITORIA-GASTEIZ
OBRAS DE REHABILITACIÓN DE CUBIERTAS Y FACHADAS


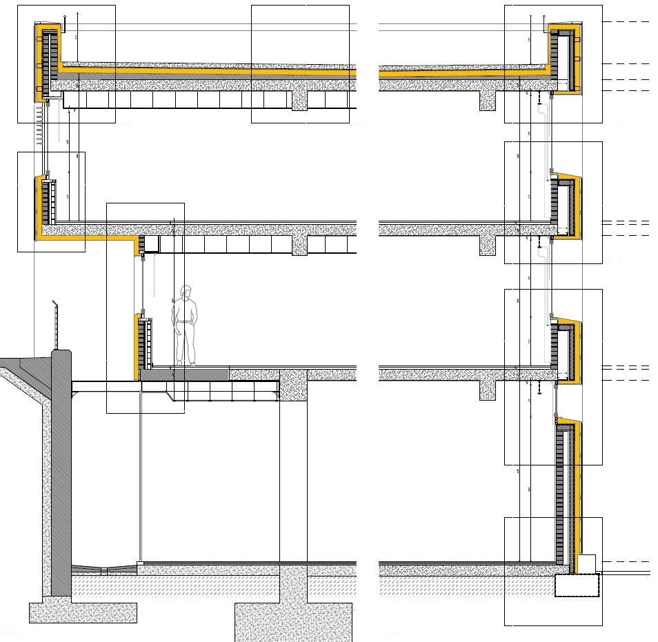
IES URIBE KOSTA BHI. PLENTZIA.
OBRAS DE REHABILITACIÓN DE CUBIERTAS Y FACHADAS





CEIP LUZARO HLHI. ITZIAR (DEBA).
REHABILITACIÓN DEL ANTIGUO AYUNTAMIENTO DE ITZIAR








IES ZUBIRI-MANTEO BHI. Edificio ZUBIRI. DONOSTIA.
REHABILITACIÓN DE FACHADAS Y CUBIERTAS









IES PIO BAROJA BHI. IRÚN.
OBRAS DE REHABILITACIÓN DE FACHADAS









HERNANI LANBIDE HEZIKETA - CIFP INNOVACION SOCIAL. HERNANI.
OBRAS DE REHABILITACIÓN





El Programa Operativo del FEDER 2014-2020 del País Vasco persigue impulsar el crecimiento económico en el País Vasco y contribuir a lograr los objetivos temáticos acordes con la Estrategia Europea 2020 para un crecimiento inteligente, sostenible e integrador. La operación Refuerzo y modernización de los servicios públicos y la adquisición de dispositivos electrónicos para los centros educativos (e-educación) de la Dirección de Infraestructuras, Recursos y Tecnologías del Departamento de Educación se cofinancia en el eje 20 (REACT-UE) del Programa Operativo FEDER del País Vasco 2014-2020 en los siguientes objetivos: La operación tiene por objeto el refuerzo y la modernización de los servicios públicos y la adquisición de dispositivos electrónicos para los centros educativos, en línea con el Plan Estratégico 2017-2021 de Modernización Tecnológica para los centros educativos del Departamento de Educación. Este proyecto ha permitido la transformación del aula, dotándola de: paneles digitales interactivos, una red inalámbrica WIFI, armarios electrificados, y proporcionando un ancho de banda suficiente para posibilitar las metodologías educativas más innovadoras. El despliegue se ha completado en las aulas de infantil, primaria, secundaria obligatoria y en bachillerato. Asimismo, se ha dotado de dispositivos portátiles a los docentes, y se han iniciado diferentes acciones para que todo el alumnado desde 5º de primaria hasta 2º de bachillerato, disponga de su propio ordenador portátil. En el ámbito educativo, las actuaciones planteadas se enmarcan en la Agenda Digital de Euskadi 2020, que tendrá como continuidad la Agenda para la Transformación Digital de Euskadi 2025. Se trata de alcanzar el aprovechamiento pleno de los medios digitales por parte de los agentes que participan en la educación y por otro la capacitación de los ciudadanos, promoviendo la inserción de las TIC en los procesos docentes, administrativos y de información y comunicación de los centros, garantizando la coordinación y la coherencia de todas las acciones. El Objetivo Específico REACT-UE 2 tiene por objeto el apoyo a las inversiones que contribuyan a la transición hacia una economía digital, contemplando gastos de actuaciones para el refuerzo y la modernización de los servicios públicos a través de las TIC e impulsar la eficiencia en la prestación de los servicios públicos. La contribución de los fondos europeos a través de la cofinanciación de las inversiones realizadas, ha sido de vital importancia para hacer frente a las dimensiones de la situación sanitaria y socioeconómica derivada del impacto de la pandemia, a fin de prestar asistencia para favorecer la reparación de la crisis en el contexto de la pandemia de COVID-19 y sus consecuencias sociales y para preparar una recuperación verde, digital y resiliente de la economía (REACT UE). El coste estimado de la operación asciende a más de 10M€, financiados al 100% por la Unión Europea, mediante el Fondo Europeo de Desarrollo Regional (FEDER). La operación Construcción, ampliación y mejora de las infraestructuras educativas, y de sus instalaciones y equipamientos de la Dirección de Infraestructuras, Recursos y Tecnologías del Departamento de Educación se cofinancia en el eje 20 (REACT-UE) del Programa Operativo FEDER del País Vasco 2014-2020 en los siguientes objetivos: La operación tiene por objeto la mejora de las infraestructuras educativas, de sus instalaciones y equipamientos, y redundará en una mejor atención a la ciudadanía, y de los servicios públicos prestados, proporcionando una asistencia de calidad, un sistema educativo sólido, promoviendo la igualdad y el empleo de calidad. En el ámbito educativo, las actuaciones planteadas se enmarcan en el “Plan de Infraestructuras educativas 2019-2023 del Departamento de Educación del Gobierno Vasco”, (que tuvo como antecedente el Plan de Mejora de Infraestructuras 2014-2018). Se trata de llevar a cabo intervenciones multidireccionales en aras a crear, ampliar, modernizar, recuperar, transformar e integrar los entornos espaciales con fines educativos en instalaciones sostenibles y versátiles acordes a nuevos tiempos y necesidades. El Objetivo Específico REACT-UE 5 tiene por objeto el apoyo de inversiones en infraestructuras que presten servicios básicos a los ciudadanos. De manera transversal también podrán incluirse actuaciones en materia de eficiencia energética y energías renovables en edificios públicos con objeto de contribuir al cumplimiento de los objetivos climáticos y de transición hacia una economía verde. La contribución de los fondos europeos a través de la cofinanciación de las inversiones realizadas, está siendo de vital importancia para hacer frente a las dimensiones de la situación sanitaria y socioeconómica derivada del impacto de la pandemia, a fin de prestar asistencia para favorecer la reparación de la crisis en el contexto de la pandemia de COVID-19 y sus consecuencias sociales y para preparar una recuperación verde, digital y resiliente de la economía (REACT UE). El coste estimado de la operación asciende a alrededor de 40M€, financiados al 100% por la Unión Europea, mediante el Fondo Europeo de Desarrollo Regional (FEDER).Programa 2014-2020
Actuaciones del Departamento de Educación financiadas por el Fondo Europeo de Desarrollo Regional (FEDER)