Euskal Autonomia Erkidegoko EGEF Programak

Euskadiko 2021-2027 EGEF programaren helburuak dira Euskal Autonomia Erkidegoaren eraldaketa teknologiko-digitala sustatzea, Espezializazio Adimenduneko Estrategiarekin (RIS 3 Euskadi 2030) bat etorriz, eta Euskadiren eraldaketa energetiko-klimatikoa sustatzea, Basque Green Deal ekimenaren eta Europako Itun Berdearen ildotik, eta, hala, Euskadi berdeagoa eta digitalagoa eraikitzen laguntzea, Europa kohesionatuago eta erresilienteago batean integratuta. Programak, horretarako, 1. helburu politikoan ("Europa lehiakorragoa eta adimentsuagoa") eta 2. helburu politikoan ("Europa berdeagoa") kontzentratu ditu jarduerak. Eskualde Garapeneko Europako Funtsak (EGEF) batera finantzatutako Hezkuntza Sailaren jarduerak EAEko ikastetxe publikoetan energia-eraginkortasuna hobetzeko jarduketak honako helburu politiko hauen barruan sartzen dira: 2. helburu politikoa: Europa berdeagoa 2.1 helburu espezifikoa: Energia-eraginkortasuna sustatzea eta berotegi-efektuko gasen emisioak murriztea. Jarduera horien helburua da eraikin publikoetan energia-eraginkortasuna eta energia-iturri berriztagarrien erabilera sustatzea, eta ekimen berritzaileetan inbertsioak egitea. EAEko ikastetxe publikoetan energia-eraginkortasuna hobetzea Gorbeialde HBI Hezkuntza Bereziko Zentroa Gasteizko Blas de Otero kaleko 2. zenbakian dago. 2024an, Hezkuntza Sailak eraikin nagusiaren estalkia eta fatxadak birgaitzeko lanak amaitu ditu, ikastetxeko inguratzaile termikoaren ezaugarriak hobetzeko eta estalkiaren iragazketak saihesteko. Estalkia birgaitzeko, jatorrizko estalkiaren gainean jarritako elementuak kendu dira, hormigoizko lauzaren gainean estalki alderantzikatu berria eratu da, behar bezala isolatua eta iragazgaitza, eta estalkiaren sabai-leihoak eta euri-urak husteko sarea ere berritu dira. Fatxadei dagokienez, fatxadaren kanpoaldetik aireztatutako fatxada-sistema erabili da. Fatxada aireztatua isolatzeko harri-zuntza eta aire-ganbera erabili dira, eta, akabera emateko aluminiozko panelak edo zeramikazko plaketak eremuaren arabera. Gainera, eraikinaren arotzeriaren ordez aluminiozko arotzeria berriak jarri dira, zubi termikoaren haustura erabilita. Obraren guztizko kostua 1.366.217,52 eurokoa izan da (BEZa barne). Eraberritu aurretik, eraikinak "C" energia-kalifikazioa zuen, bai energia primario ez-berriztagarriaren kontsumoan, bai karbono dioxidoaren isurketetan. Birgaitze-lanak egin ondoren, amaierako energia-kalifikazioa "B" da energia ez-berriztagarriaren kontsumoan, eta "A" karbono dioxidoaren isurketetan (kontsumoa % 45 murriztu da eta CO2 isuriak, berriz, % 48). IES URIBE KOSTA BHI 1970ean eraiki zen, eta Plentziako Txipio auzoko Genaro Urrutia Aldapa kaleko 1. zenbakian dago. 2025ean, Hezkuntza Sailak eraikinaren fatxadak eta estalkia birgaitzeko obrak hasi zituen, zentroaren inguratzaile termikoaren ezaugarriak eta energia-eraginkortasuna hobetzeko. Fatxada aireztatu bidez birgaituko dira fatxadak. Fatxada hori isolatzeko harri-zuntza erabiliko da, aire-ganbera izango du eta fibrozementuzko plakak jarriko dira akabera emateko. Zenbait eremutan, kanpo isolamendu termikoko sistema (KITS) ere erabiliko da, mortero akriliko akaberarekin. Gainera, eraikineko arotzeria guztia kendu eta aluminio estruituko arotzeria berriak jarriko dira, zubi termikoaren haustura erabilita. Estalkiari dagokionez, dagoen estalkia kendu eta ibiltzeko moduko beste estalki bat jarriko da; horretarako, hormigoizko zolata flotatzailea instalatuko da, isolatzeko poliestireno estruituaren (XPS) gainean. Proiektuaren aurrekontua, guztira, 1.524.356,45 €-koa da (BEZa barne). Egungo eraikinak "C" energia-kalifikazioa du, bai energia primario ez-berriztagarriaren kontsumoan, bai karbono dioxidoaren isurketetan. Birgaitze-lanak egin ondoren, aurreikusitako azken energia-kalifikazioa "A" da, bai energia ez-berriztagarriaren kontsumoan, bai karbono dioxidoaren emisioetan, kontsumoa % 53 murriztuta eta CO2 emisioak % 62 murriztuta. 2024an, Hezkuntza Sailak martxan jarri zituen Itziarko Udaletxe zaharra birgaitzeko obrak, Debako CEIP LUZARO HLHI lehen hezkuntzako ikastetxe gisa egokitzeko. Eraikinak urte asko zeramatzan erabili gabe, eta oso egoera txarrean zegoen, hari atxikitako 2 solairuko eraikina izan ezik, zeina Itziarko Toki Erakunde Txikiak bileretarako erabili izan duen. Eraikinak egurrezko egitura eta harlangaitzezko fatxadak ditu, eta Gipuzkoako Foru Aldundiak katalogatu eta babestu du, Donejakue Bidean dagoelako. Beraz, birgaitzea oso zehatza izan da, eta jatorrizko eraikuntza-elementu eta -sistema guztiak errespetatu behar izan ditu, baita fatxadak ere. Birgaitze integralaz gain, eraikinaren irisgarritasuna eta suteen aurkako segurtasun-baldintzak hobetuko dira. Obra amaitzeke dago. Eraikinaren ezaugarri termikoak hobetzeko, jatorrizko egituraren zurezko elementuak dauden-daudenean utziko badira ere, fatxadak kartoi-igeltsuzko panelekin trasdosatu dira eta isolatzeko harri-zuntza erabili da; teilatuak ere isolatu dira. Obrak esleitzeko aurrekontua 1.668.143,83 €-koa da (BEZa barne). Eraberritze-lanen aurreko eraikinak "E" energia-kalifikazioa zuen energia primario ez-berriztagarriaren kontsumoan, eta "E" karbono-dioxidoaren isurketetan. Birgaitze-lanak egin ondoren, "A" energia-kalifikazioa aurreikusten da, bai energia ez-berriztagarriaren kontsumoan, bai karbono dioxidoaren isurketetan, kontsumoa % 76 murriztuta eta CO2 isuriak % 84 murriztuta Donostiako IES Zubiri-Manteo BHIko Zubiri eraikina Donostiako Jose Migel Barandiaran kaleko 12. zenbakian dago, Sagues auzoan. 1979-80 urtean eraiki zuten, Groseko Batxilergo Institutu gisa, Luis Peña Ganchegui arkitektoaren proiektuaren arabera. Gaur egun, eraikin horretan bertan ematen dira DBHko hezkuntza-etapak, Zereginen Ikaskuntzarako Gela, Batxilergoak eta Erdi eta Goi Mailako Heziketa Zikloak, bai eta Arautu Gabeko Heziketa ere. Jatorrizko proiektuaren fatxada hareharrizko plakaz estalita zegoen. Haizeak eta itsasoak gogor astintzen duen enklabea da, eta, beraz, eraikinaren narriadura oso handia da. Hori dela eta, fatxada horietan hainbat konponketa-lan partzial egin dira, eta gaur egun hainbat fatxada-tipologia eta -akabera dituzte. 2025ean, Hezkuntza Sailak eraikineko fatxadak eta estalkiak osorik birgaitzeko obrak kontratatzeko prozedura abiarazi zuen, energia-eraginkortasuna hobetzeko. Fatxada aireztatu bidez birgaituko dira fatxadak. Eremu batzuetan, harri-zuntza erabiliko da isolatzeko, eta estrusionatutako zeramikazko plakak akabera emateko; eta beste batzuetan, kanpoko isolamendu termikoko sistema (KITS) erabiliko da, eta zeramikazko edo morterozko akabera. Gainera, kanpoko arotzeriak ordeztuko dira eta aluminiozko arotzeriak instalatu: zubi termikoaren haustura eta beira-unitate bikoitza, behe-emisibitateko tratamendua eta argon gasa duen aire-ganbera. Horrez gain, eguzki-babeseko estoreak eta lamak jarriko dira, gehiegizko eguzkiztapenak saihesteko. Estalkiari dagokionez, egungo estalkiaren ordez, ibiltzeko moduko estalki alderantzikatu bat jarriko da: xafla iragazgaitza eta poliestireno estruituko isolamendua izango du, eta akaberan hormigoia erabiliko da. Proiektuaren kontrataren guztizko aurrekontua 2.303.385,87 €-koa da (BEZa barne). Egungo eraikinak "D" energia-kalifikazioa du energia primario ez-berriztagarriaren kontsumoan, eta "C" energia-kalifikazioa karbono dioxidoaren isurketetan. Birgaitze-lanak egin ondoren, energia ez-berriztagarriaren kontsumoan aurreikusitako energia-kalifikazioa "B" da, kontsumoa % 41 murriztuta. Karbono dioxidoaren emisioetan aurreikusitako energia-kalifikazioa ere "B" da, CO2 emisioa % 44 murriztuta. PIO BAROJA BHI Bigarren Hezkuntzako Institutua, Irungo Elkano kaleko 2. zenbakian dago, eta 1965. urtean inauguratu zen; beraz, 60 urteko antzinatasuna du. Eraikinak gabezia handiak ditu energia-eraginkortasunari dagokionez, eta konfort termikoko arazo larriak ditu. Fatxadek ur-iragazketako arazoak eta estankotasun-falta dituzte, baita eguzkiztapen arazo larriak ere, hegoaldeko eta ekialdeko fatxadetan. 2025ean, Hezkuntza Sailak fatxadak birgaitzeko, eraikinaren irisgarritasuna hobetzeko eta suteetarako segurtasun-araudira egokitzeko lanak kontratatzeko prozedura abiarazi zuen. Proiektuaren kontrataren guztizko aurrekontua 5.281.818,80 €-koa da (BEZa barne). Fatxadak osorik birgaitzea aurreikusten da, eta, horretarako, kanpo isolamendu termikoko sistema erabiliko da, leihoak aldatu egingo dira eta hegoaldeko eta ekialdeko fatxadetan eguzki-babeseko sistema bat instalatuko da, gehiegizko eguzkiztapena murrizteko. Fatxadetan fatxada aireztatuko sistema erabiliko da. Isolatzeko harri-zuntza eta estrusionatutako zeramikazko plakak jarriko dira, eta eremu batzuetan, kanpo isolamendu termikoko sistema ere (KITS) erabiliko da, eta emokadura akrilikoa akabera emateko. Egungo arotzerien ordez, aluminio lakatuzko arotzeria berriak jarriko dira: zubi termikoaren haustura eta behe-emisibitateko segurtasun-beirak erabiliko dira. Egungo eraikinak "D" energia-kalifikazioa du energia primario ez-berriztagarriaren kontsumoan, eta "D" energia-kalifikazioa karbono dioxidoaren isurketetan. Birgaitze-lanak egin ondoren, energia ez-berriztagarriaren kontsumoan aurreikusitako energia-kalifikazioa "B" da, eta kontsumoa % 41 murriztea aurreikusten da. Karbono dioxidoaren emisioetan aurreikusitako energia-kalifikazioa "C" da, eta CO2 emisioak % 44 murriztea aurreikusten da.
Hernaniko GIZARTE BERRIKUNTZAKO LHII (gaur egun HERNANI LANBIDE HEZIKETA) zentroaren eraikina 1962an eraiki zen Hernaniko Karmelo Labaka kaleko 7. zenbakian, eta 1968an handitu. 2024an, Hezkuntza Sailak eraikina birgaitzeko lanak amaitu zituen, inguratzaile termikoaren ezaugarriak eta energia-eraginkortasuna hobetzeko, bai eta irisgarritasuna, suteen aurkako babesa, instalazioak eta barruko espazioak hobetzeko ere. Eraikinak konfort termiko eta akustikoko arazo larriak zituen, baita indarrean dauden araudira egokitzen ez ziren instalazioak ere. Fatxadak kanpo isolamendu termikoko sistema (KITS) bidez birgaitu ziren: morteroa erabili zen akabera emateko eta harri-zuntza isolatzeko. Eraikinaren kanpoko arotzeria guztiz berritu zen. Aluminio termolakatuzko arotzeria berriak jarri ziren: zubi termikoaren haustura erabili zen eta beira-unitate bikoitza, behe-emisibitateko tratamendua eta argon gasa duen aire-ganbera. Instalazioei dagokienez, besteak beste, galdara-gela eraberritu zen gas naturalarekin funtziona zezan (lehen gasolioa erabiltzen zen), korridoreetan eta berogailurik gabeko zirkulazio-eremuetan erradiadoreak instalatu ziren, eta zeuden luminaria fluoreszenteen ordez LED motako argiak jarri ziren. Obrak 2024ko otsailean amaitu ziren, eta obren guztizko kostua 2.708.637,92 eurokoa izan zen (BEZa barne). Obrak egin ondoren, eraikinak "C" energia-kalifikazioa lortu du energia primario ez-berriztagarriaren kontsumoan, (% 44 aurreztu da kontsumoan) eta karbono dioxidoaren isuriei dagokienez, azken energia-kalifikazioa "B" da.2021-2027 Programa
CEE GORBEIALDE HBI. VITORIA-GASTEIZ.
FATXADAK ETA ESTALKIAK BIRGAITZEKO LANAK



IES URIBE KOSTA BHI. PLENTZIA.
ESTALKIAK ETA FATXADAK BIRGAITZEKO LANAK





CEIP LUZARO HLHI. ITZIAR (DEBA).
ITZIARKO UDALETXE ZAHARRAREN BIRGAITZEA









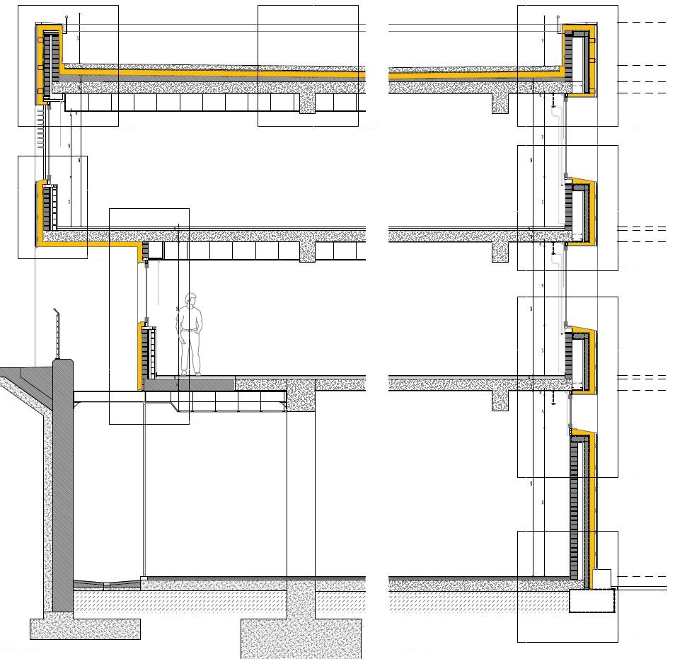
IES ZUBIRI-MANTEO BHI. ZUBIRI ERAIKINA. DONOSTIA.
FATXADEN ETA ESTALKIEN BIRGAITZEA









IES PIO BAROJA BHI. IRUN.
FATXADAK BIRGAITZEKO LANAK









HERNANI LANBIDE HEZIKETA - GIZARTE BERRIKUNTZAKO LHII. HERNANI.
BIRGAITZE-LANAK





Euskal Autonomia Erkidegoko 2014-2020 aldiko EGEF Programa Eragilearen helburua da Euskadin hazkunde ekonomikoa bultzatzea eta hazkunde adimendun, jasangarri eta integratzaile baterako Europa 2020 Estrategiarekin bat datozen helburu tematikoak lortzen laguntzea. Hezkuntza Saileko Azpiegitura, Baliabide eta Teknologien Zuzendaritzaren zerbitzu publikoak indartu eta modernizatzeko eta (e-hezkuntza) ikastetxeetarako gailu elektronikoak erosteko eragiketa Euskadiko 2014-2020 aldirako EGEF Programa Operatiboaren 20. ardatzean (REACT-UE) kofinantzatzen da, honako helburu hauekin: Eragiketa honen helburua da zerbitzu publikoak indartzea eta modernizatzea, eta ikastetxeetarako gailu elektronikoak erostea, Hezkuntza Saileko ikastetxeetarako Modernizazio Teknologikoko 2017-2021 aldirako Plan Estrategikoaren ildotik. Proiektu horri esker, ikasgela eraldatu ahal izan da, eta honako hauek eman zaizkio: panel digital interaktiboak, haririk gabeko WIFI sarea, armairu elektrifikatuak, eta hezkuntza-metodologia berritzaileenak ahalbidetzeko adinako banda-zabala. Hedapena osatu da Haur Hezkuntzako, Lehen Hezkuntzako, Derrigorrezko Bigarren Hezkuntzako eta Batxilergoko geletan. Era berean, irakasleei gailu eramangarriak eman zaizkie, eta hainbat ekintza hasi dira Lehen Hezkuntzako 5. mailatik Batxilergoko 2. mailara bitarteko ikasle guztiek beren ordenagailu eramangarria izan dezaten. Hezkuntzaren eremuan, planteatutako jarduerak Euskadiko 2020rako Agenda Digitalaren barruan kokatzen dira. Agenda horren jarraipena 2025erako Euskadiko Eraldaketa Digitalerako Agenda izango da. Helburua da hezkuntzan parte hartzen duten eragileek bitarteko digitalak bete-betean aprobetxatzea eta, bestetik, herritarrak gaitzea, IKTak ikastetxeen irakaskuntza-, administrazio-, informazio- eta komunikazio-prozesuetan txertatzea sustatuz, ekintza guztien koordinazioa eta koherentzia bermatuz. REACT-UE 2 Helburu Espezifikoaren xedea da ekonomia digital baterako trantsizioan laguntzen duten inbertsioei laguntzea, IKTen bidez zerbitzu publikoak indartzeko eta modernizatzeko eta zerbitzu publikoak ematean eraginkortasuna bultzatzeko jarduketa-gastuak kontuan hartuta. Europako funtsen ekarpena, helburu espezifiko horretan bildutako gastuaren kofinantzaketaren bidez, oso garrantzitsua izan da pandemiaren inpaktuaren ondoriozko osasun-egoeraren eta egoera sozioekonomikoaren dimentsioei aurre egiteko, eta, horrela, COVID-19aren pandemiaren testuinguruan sortutako krisiaren eta horren ondorio sozialak konpontzen laguntzeko eta ekonomiaren susperraldi berde, digital eta erresilientea prestatzeko (REACT EB). Eragiketaren kostua 10M €-tik gorakoa da, eta Europar Batasunak finantzatzen du % 100ean, Eskualde Garapeneko Europako Funtsaren (EGEF) bidez. Hezkuntza Saileko Azpiegitura, Baliabide eta Teknologia Zuzendaritzaren hezkuntza-azpiegiturak, eta horien instalazioak eta ekipamenduak eraikitzeko, handitzeko eta hobetzeko eragiketa Euskadiko 2014-2020 aldirako EGEF Programa Operatiboaren 20. ardatzean (REACT-UE) kofinantzatzen da, honako helburu hauekin: Eragiketa horren helburua da hezkuntza-azpiegiturak, instalazioak eta ekipamenduak hobetzea , eta herritarrei ematen zaien arreta eta ematen diren zerbitzu publikoak hobetzea, kalitatezko laguntza eta hezkuntza-sistema sendoa emanez, berdintasuna eta kalitatezko enplegua sustatuz. Hezkuntzaren arloan, planteatutako jarduerak Eusko Jaurlaritzako Hezkuntza Sailaren 2019-2023 aldirako Hezkuntza Azpiegituren Planaren barruan kokatzen dira (plan horren aurrekaria 2014-2018 aldirako Azpiegiturak Hobetzeko Plana izan zen). Helburua da norabide anitzeko esku-hartzeak egitea, espazio-inguruneak sortzeko, zabaltzeko, modernizatzeko, berreskuratzeko, eraldatzeko eta integratzeko hezkuntza-helburuekin, garai eta behar berriekin bat datozen instalazio jasangarri eta moldakorretan. REACT-UE 5 helburu espezifikoaren helburua da herritarrei oinarrizko zerbitzuak ematen dizkieten azpiegituretan inbertsioak egiten laguntzea. Zeharka, eraikin publikoetan energia-eraginkortasunaren eta energia berriztagarrien arloko jarduerak ere sartu ahal izango dira, klima-helburuak betetzen laguntzeko eta ekonomia berde baterako trantsizio-helburuak lortzeko. Europako funtsen ekarpena, helburu espezifiko horretan bildutako gastuaren kofinantzaketaren bidez, oso garrantzitsua izaten ari da pandemiaren inpaktuaren ondoriozko osasun-egoeraren eta egoera sozioekonomikoaren dimentsioei aurre egiteko, eta, horrela, COVID-19aren pandemiaren testuinguruan sortutako krisiaren eta horren ondorio sozialak konpontzen laguntzeko eta ekonomiaren susperraldi berde, digital eta erresilientea prestatzeko (REACT EB). Eragiketaren aurreikusitako kostua 40 milioi eurokoa da, eta Europar Batasunak finantzatzen du % 100ean, Eskualde Garapeneko Europako Funtsaren (EGEF) bidez.2014-2020 Programa
Eskualde Garapenerako Europako Funtsak (EGEF) finantzatutako Hezkuntza Sailaren jarduerak